Neubau Begleitete Standardwohnungen, Husum

Projektbeschreibung

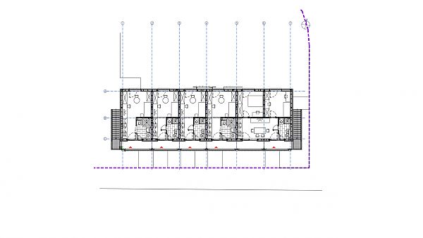
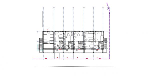
Die Stadt Husum hat an zwei Standorten begleitete Standardwohnungen geschaffen, die kurzfristig und zeitlich begrenzt Wohnungslose aufnehmen sollen. Es entstanden ein zweigeschossiges Gebäude mit neun Wohnungen in der Volquard-Pauls-Straße und zwei eingeschossige Gebäude mit sechs Wohnungen in der Schillerstraße. 

Die Gebäude entstanden in Holzbauweise mit einem hohen Dämmstandard, aber relativ niedrigen Ausstattungsmerkmalen, um die Wohnungen bezahlbar und förderfähig zu machen. Die Mieter, die sich auf dem offenen Wohnungsmarkt keine Wohnung leisten können, bezahen eine geringe Miete und werden von der Stadt Husum unterstützt, schnellstmöglich auf dem normalen Wohnungsmarkt Fuß zu fassen. 

Es wurden Einzimmerwohnungen für Singles und Paare sowie Dreizimmerwohnungen für Alleinerziehende und Kleinfamilien geschaffen.

Fotos: JEBENS SCHOOF ARCHITEKTEN BDA